Typ transakcji
Grupa portali: Szukam-Nieruchomosci.com Invest-Poland.com Szukam-Inwestora.com
Szukam-Inwestora.com Szukam-Inwestora.com

Sprzedam - nieruchomość gruntowa wraz z pozwoleniem na budowę

Szukam inwestora: Turystyka, hotele

Opis oferty


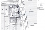
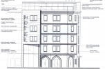
Oferuję na sprzedaż teren inwestycyjny o powierzchni 308,00 m2 wraz z projektem architektonicznym czterokondygnacyjnego hotelu. Posiadam dziennik budowy. Teren ulokowany jest w zabytkowym Centrum Bytomia u zbiegu ulicy Mariackiej i Księdza K. Koziołka tuż przy Rynku.

Powierzchnia całkowita projektowanego hotelu wynosi 956,00 m2, powierzchnia użytkowa 536,16 m2. Budowę można rozpocząć natychmiast.

Podstawowe informacje o projektowanym hotelu:
- wysokość budynku: 16,73 m;
- kubatura: 3944,80 m3;
- ilość kondygnacji: 4
- ilość pokoi: 12
- dostępne media: prąd, woda, ciepło miejskie, gaz

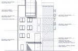
Zakres funkcjonalny:
- piwnica: zaplecze gastronomiczne, węzeł sanitarny dla gości;
- parter: gastronomia, lobby hotelowe, garaż;
- pierwsze piętro: sala konferencyjna, 3 pokoje
- drugie piętro: 5 pokoi
- trzecie piętro: 4 pokoje, spa, sala fitness;
- dach: gastronomia z tarasem widokowym, basen.

Podobne oferty


Rehabilitacja turystyczna

wielkopolskie
aktualizacja: 22.09.2025

Szukam inwestora: Turystyka, hotele

Zaplecze turystyczne w Afryce, partner biznesowy. Poszukuję firmę osobę chętną poprowadzić takowy biznes. W miejscu docelowym dostęp do całości usług, dojazdy, przejazdy, transfery. Na miejscu...

inwestor rehabilitacjaszukam inwestoraszukam wspólnika

wielkopolskie
aktualizacja: 22.09.2025

Sprzedam obiekt hotelowo-restauracyjny w Tomaszowie Maz

7 990 000 zł łódzkie, Tomaszów Mazowiecki
aktualizacja: 22.09.2025

Szukam inwestora: Turystyka, hotele

Sprzedam jedyny obiekt hotelowo-gastronomiczny w Tomaszowie Mazowieckim. Świetny punkt, blisko trasy. Idealne miejsce na np. dom seniora...

nieruchomość hotelowarestauracjanieruchomość komercyjna

7 990 000 zł łódzkie, Tomaszów Mazowiecki
aktualizacja: 22.09.2025

Oferta nieruchomości do inwestycji ośrodka/hotelu

2 800 000 zł podlaskie
aktualizacja: 04.09.2025

Szukam inwestora: Turystyka, hotele

Ośrodek z prywatną plażą w sercu Suwalszczyzny Wyjątkowa nieruchomość w stanie surowym otwartym, położona w malowniczej okolicy jezior i lasów, w gminie Giby (woj. podlaskie)....

inwestycja w hotelinwestor do hotelunieruchomość na hotelnieruchomość hotelowa

2 800 000 zł podlaskie
aktualizacja: 04.09.2025

Oferta inwestycyjna: hostel w Krakowie (rentacja ~12% w skal...

2 500 000 zł małopolskie
aktualizacja: 28.08.2025

Szukam inwestora: Turystyka, hotele

Nazywam się Viktoriia, mieszkam w Krakowie i uruchamiam projekt hostelu w turystycznej dzielnicy miasta. Szukam inwestora do zakupu mieszkania i udziału w projekcie. Kluczowe wskaźniki...

hostel krakówkraków komercyjnekraków inwestorinwestycja w krakowie

2 500 000 zł małopolskie
aktualizacja: 28.08.2025

Hotel na wodzie Mrągowo

1 500 000 zł warmińsko-mazurskie
aktualizacja: 23.08.2025

Szukam inwestora: Turystyka, hotele

Poszukiwany Wspólnik, Inwestor lub Pożyczkodawca – Inwestycja w Hotel na Wodzie. Poszukuję wspólnika, inwestora lub pożyczkodawcy do...

inwestycja w hotelinwestor do hoteluhotel mrągowohotel mazuryszukam inwestorabiznes hotelowyhotel na wodzie

1 500 000 zł warmińsko-mazurskie
aktualizacja: 23.08.2025
Grupa portali: Szukam-Inwestora.com Szukam-Nieruchomosci.com Invest-Poland.com
Partnerzy eFaktor StockWatch Business Angels Club doinvest partners Fordata
© 2003-2025 doinvest partners
Strona korzysta z plików cookies. Więcej na temat plików cookies znajdziesz w regulaminie.    Akceptuję